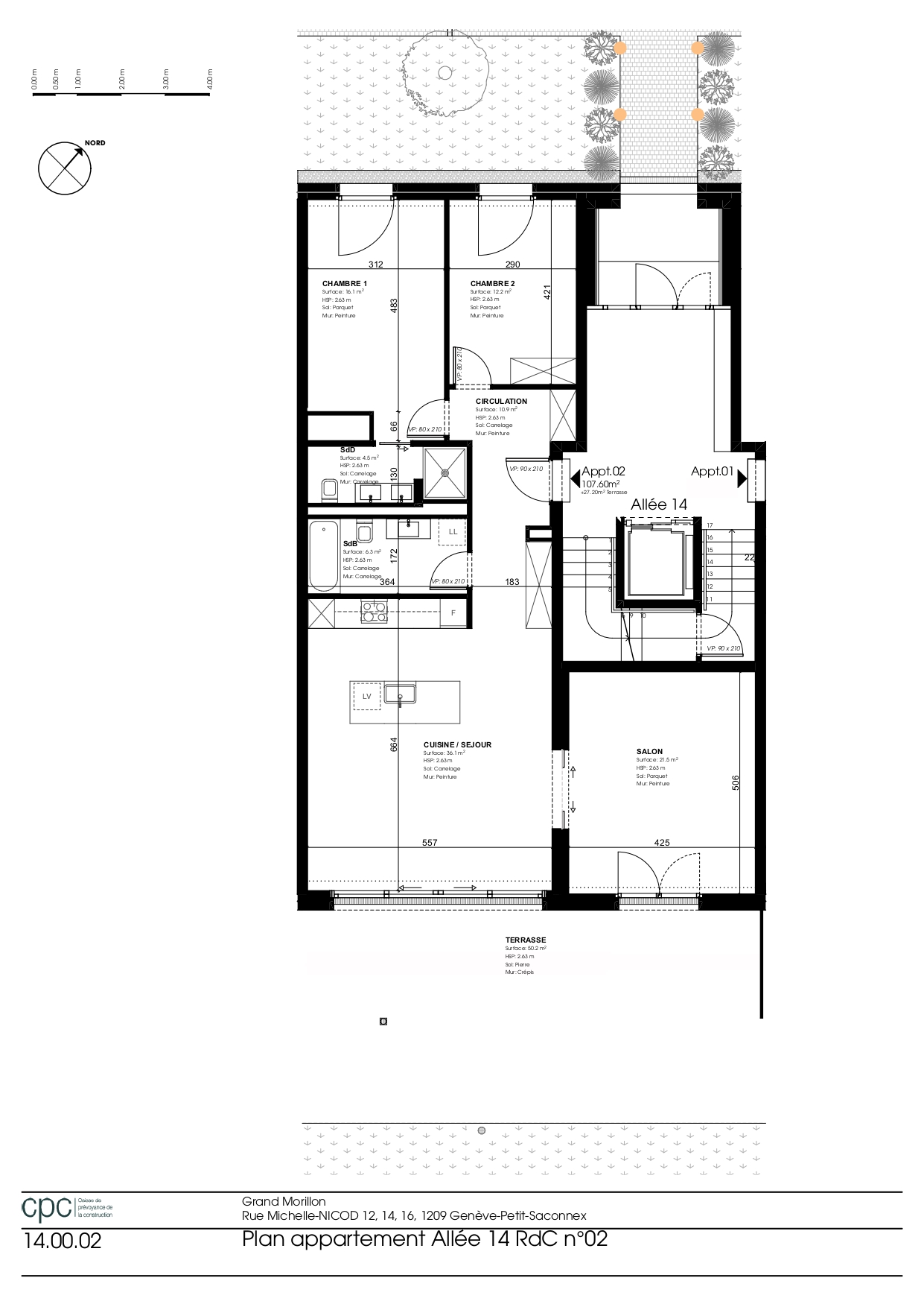
Appartement 5 pièces rez-de-chaussée (allée 14)

Numéro de référence: 14.00.02

Appartement de 5 pièces situé au rez-de-chaussée (allée 14), rue Michelle-Nicod 14, 1202 Genève.

L’appartement est distribué comme suit:

  • Un hall d’entrée avec carrelage au sol muni d’un interphone.
  • Une cuisine ouverte sur séjour (avec carrelage au sol) entièrement équipée d’électroménagers de la marque Miele avec îlot central et plan de travail en Dekton.
  • Un salon indépendant avec parquet au sol.
  • Une suite parentale avec du parquet au sol avec salle de douche attenante.
  • Une chambres à coucher spacieuse avec du parquet au sol.
  • Une salle de bain spacieuse avec vasque en Dekton et meuble sous lavabo en chêne. Possibilité d’installer dans la salle de bain une colonne lavante-séchante.
  • Une large terrasse orientée sud-est avec accès au jardin, ombragée grâce à un store banne avec prise et éclairage.

En complément des nombreux rangements qui équipent l’appartement, une très grande cave privative située au 2e sous-sol vient compléter le bien.

Tous les appartements sont équipés de chauffage au sol et de stores à lamelles électrifiés.

Des places de parking pour voiture sont situées au 1er sous-sol (location à 240.- CHF/mois l’unité). Il y a possibilité, sur demande, de faire électrifier ces places afin de permettre de recharger sa voiture électrique. Des places de parking pour moto sont également situées au 1er sous-sol (location à 140.- CHF l’unité/mois).

Ce 1er sous-sol bénéficie de larges locaux communs tels que buanderies, locaux poussettes, locaux vélos sécurisés avec casiers fermés pour la recharge de batterie.

Des places visiteurs pour voiture, motos et vélos sont prévues à l’avant de la résidence.

Surface logement: 107.6 m2
Surface loggia/terrasse: 50.9 m2
Surface jardin: 49.5 m2
Loyer mensuel hors charges: 4920 CHF
Charges mensuelles: 225 CHF
Loyer mensuel total: 5145 CHF

Prendre rendez-vous pour une visite :

Formulaire contact pour visites